摘要:近10年中国绿色建筑全面蓬勃发展,绿色建筑“四节一环保”的概念已经为广大民众所认知。但作为资源消耗大、环境需求多的医 院建筑而言,绿色设计探研还在跋涉之路上。结合绿色医院建筑评价要求,聚焦环境资源利用之道,以上海市第一人民医院绿色设计实践为 例,分析了城市背景下,医院建筑如何实现对环境资源高效率的开发整合共享,创建与环境资源互动友好的绿色医院。
关键词:绿色医院;环境资源;开发;整合;共享
1医院建筑发展特点
1.1 建筑特点
对比一般常规公共建筑,医院建筑是对资源需求多、消耗大的一类建筑类型。具体体现在外部场地、内部空间、环境资源、医用资源多方面,典型表征描述如下。
(1)医院常位于中心地段,用地范围有限。
(2)医院建筑及设备能耗大,病房急诊区均需 24 h 运行。
(3)医院体量较大,内部空间较多闭塞。
(4)医院功能模块多,内外流线复杂。
(5)医院污染物种类多,处理标准严格。
(6)医院人流量大,对室内舒适健康度有特定需求。
1.2 发展趋势
基于绿色健康的发展背景,针对医院建筑特点,我国于 2015 年颁布了 GB/T51153—2015《绿色医院建筑评价标准》,规定“绿色医院建筑是指在医院建筑的全寿命周期内以及保证医疗流程的前提下,最大限度地节约资源(节地、 节能、节水、节材)、保护环境和减少污染,为病人和医护工作者提供健康、适用和高效的使用空间,与自然和谐共生 的医院建筑。”可见,环境与资源是绿色医院的核心关注点。
2绿色医院设计实践
结合上海市第一人民医院“住院医疗综合大楼”项目实践,探析医院建筑如何通过规划及建筑设计手段,在既有街区中实现对环境资源的“开发—整合—共享”,创建绿色医院。
2.1 项目概况
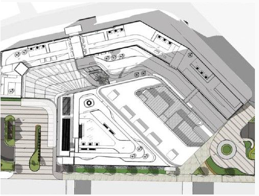
上海市第一人民医院是全国建院较早、规模较大的西医综合性医院。现整个院区用地东起九龙路,西至吴淞路,南邻海宁路,北侧为哈尔滨路。地块中部的武进路是新老两个院区的分隔界面。其北侧新地块上的住院医疗综合大楼于 2017 年建成并投入使用(下文简称“住院大楼”)。图 1 为住院大楼院区总体区位图。

图 1 院区总体区位图
住院大楼项目由 1 幢 15 层主楼、1 幢 4 层辅楼(旧建筑改造)及连廊、连接体构成。功能包含急诊急救中心、手术中心、门诊体检中心、住院中心及相关诊疗辅助等。现已获得绿色建筑设计评价标识二星级。住院大楼技术经济指标如表 1 所示。

表 1 住院大楼技术经济指标
设计团队在充分分析周边场地资源及自身功能需求后, 因地制宜制定了一套“简单高效适宜实用”的绿色技术体系。
2.2 集约整合用地
2.2.1 发展需求
现有城市中心区土地极为稀缺,如何打破单位和功能的界限、有效利用稀缺土地资源,是当下医院建筑亟需思考和解决的问题。
2.2.2 设计策略
第一人民医院老院区位于土地资源极其紧张的中心城区,故本项目采取了城市更新策略,即在有限的用地中整合周边资源。
(1) 激活武进路北侧新地块 :新建“住院大楼”(图 2 中 浅绿色部分)、改建原“虹口中学”(图 2 中橙色部分)。

图 2 第一人民医院原状及建成总体布局
(2) 盘整武进路南侧老地块:拆除“行政楼”、改建“门诊楼”、扩建“医技楼”、拟新建“眼科中心”。
(3) 架构一体化交通体系:通过建筑内部的竖向及水平交通、地上及地下跨街交通,形成新老院区内部贯通流线。通过跨街连廊、内院连廊、贯通管沟、重置分区,实现了人流、车流、物流、信息流的统筹规划,南北院区的人员交通、 医疗用品、废弃物系统均实现了连通整合共享。
本项目在有限的场地空间内合理布局,容积率达到 3.0。最终实现了老院区空间扩展,赋予了新院区建筑活力,形成南北整体持续滚动发展态势。
2.2.3 绿色建筑评价
4.2.1 合理开发利用土地, 在保证功能和环境要求的前 提下节约土地。计 18 分。
2.3 利用既有建筑
2.3.1 发展需求
城市更新发展的进程中,对现有建筑进行加建、改造利用而非简单粗暴地拆除重建,一方面有利于保持城市实体环境以及建筑本身的历史文化的延续性;另一方面,可以解决仅靠旧建筑地上空间加建无法满足新建工程功能要求的问题。同时,又大量节约了建材、减少了拆除过程中废弃物的排放。因此,合理利用旧建筑同时拓展新建建筑是城市发展 背景下的一举多得的整合举措。
2.3.2 设计策略
住院大楼项目保留了原虹口高级中学这一 1940 年建造具有历史价值的建筑,结合需要新建的建筑体量,对其进行改造更新及整合利用。旧建筑改造前立面与改造后立面的对比如图 3 所示。

图 3 旧建筑改造前立面与改造后立面的对比
改造前,项目组对历史资料、建筑现状、同时期同类型建筑进行了深入调研,制定以下保护修缮方案。
(1)结构加固。保留老建筑的主体结构,拆除木楼板和门窗及部分填充墙,继而对其结构进行加固,使其满足医疗建筑的荷载和抗震规范要求。
(2)功能重置。改造后的建筑,一层功能为急诊诊室、成人输液,住院辅助办公等。同时在新建建筑和保留建筑之间设置了连接体,兼作为急诊大厅。二层设置教室、教研室、多功能厅等。三层四层为南北院区共用的职能部门办公室。 增设两部垂直交通电梯。
(3)立面传承。立面风格为简化的三段式结构。基座段为水刷石墙面,中段和上段为水泥砂浆斧剁技法制成的较粗犷墙面。三段之间设置水泥粉刷线脚,其中底层线脚水平贯通突出。
(4)材料修复。通过先进的清洗手段,去除掉近期后加涂料等与建筑风貌相悖的装饰材料,恢复出立面材质的本来面目;对有残缺风化或损坏的部分,则进行粉刷修补。这种保护性更新手法激活了既有建筑的底蕴,赋予了新建建筑的内涵,大幅减少了资源消耗及碳排放。
2.3.3 绿色建筑评价
10.2.2 合理选用废弃场地进行建设 , 充分利用尚可使用的旧建记 1 分。
2.4 共享公共空间
2.4.1 发展需求
医院建筑需要借助共享公共空间的开放,以实现向内利用外部资源、向外共享内部资源的目标,从而解决交通组织、优化室内环境,提升心理健康。
2.4.2 设计策略
住院大楼项目以建造开放式医院为理念。通过设置兼具私密性与自然感的公共广场、花园式屋顶并共享于患者,使 其成为患者可见可达可用的活动空间。
(1)公共广场。在建筑西侧设置急诊人流入口及广场,东侧设置住院人流入口及广场。两个广场之间阻而不隔,还结合转弯路径设置了绿化景观。解决人流车流交通问题的同时,给就诊病人以亲切舒适健康的环境感受。公共广场布置图如图 4 所示。

图 4 公共广场布置图
(2)花园屋顶。在 A 楼裙房屋顶及 B 楼屋顶均设置了组合式屋顶绿化。A 楼绿化面积 641.24 m2,B 楼绿化面积 459.50 m2,合计占屋顶可绿化面积52.25%。
灌木与草坪结合种植,草坪间设置线性木栈道及点状休憩单元,同期规划了屋顶咖啡。系列措施体现出新型医院对健康环境、愉悦精神的设计追求。屋顶绿化实景图如图 5 所示。

图 5 屋顶绿化实景图
2.4.3 评价条文
8.2.13 医院设计中考虑人性化设计因素,公共场所设有专门的休憩空间,充分利用连廊、架空层、上人屋面等设置 公共步行通道、公共活动空间、公共开放空间,宜考虑全天 候的使用需求。记 5 分。
2.5 优化室内光环境
2.5.1 发展需求
医院的服务对象与办公楼、酒店、商场等公共建筑有所不同,不仅包括患者和伤员,还包括处于特定生理状态的健康人(如孕妇、产妇、新生儿)、完全健康的人(如体 检、保健人员)以及处于健康状态的医护人员。因此,对室内光环境的优化即是对生存环境的优化, 光照充沛的室内环境能有效调节医生和患者情绪、促进病员身体康复。
2.5.2 设计策略
住院大楼项目以建造健康医院为理念。设计师并未单纯追求建筑面积的最大“实用化”,而是将室内外空间功能与室内健康舒适并重整体设计。搭建开放式下沉庭院、共享阳光中庭,共同构成建筑这一生命体的“呼吸”系统,为患者提供了健康舒适的就诊环境。
(1) 开放内院及下沉庭院。住院大楼 A、B 新老建筑之间是一个带状开放内院,既能便捷联通内外,又能给予医院内部人流相对私密的静谧空间。内院中的下沉庭院,丰富了庭院空间及景致,同时也是建筑外人流进入地下一层的入口。
基于自身功能和结构需要,住院大楼项目对地下空间进行了合理利用。地下一层布置有影像科检查、核医学科检查类重要的功能用房。传统中黑暗闭塞的地下空间,得益于下沉广场的精妙设计,却获得了优越的自然采光及通风条件。经模拟测算,地下一层候诊区域的平均采光系数达到了 1.4%,整个地下室 5.4% 的区域的采光系数达到了 0.5%。下沉庭院实景图如图 6 所示。

图 6 下沉庭院实景图
(2)共享中庭。住院大楼 A、B 新老建筑之间的连接体被设计为一个 3 层通高的中庭, 围绕中庭布置急诊各科室、服务台及具有流线感的楼梯设置于大厅中央醒目之处,顺畅引导人流到达地下一层检查单元。就诊者身处于窗明几净空气清新的大厅内,既可仰望上部开阔天窗,又可俯观下沉庭院园景。宽敞明净的环境、柔和明净的色彩完全改善了传统医院拥杂闭塞的就诊感受。共享中庭实景图如图 7 所示。

图 7 共享中庭实景图
2.5.3 评价条文
8.2.4 病房、诊室等房间可获得良好的室外景观。记 8 分。
8.2.5 采用合理措施,改善室内或地下空间的自然采光效果。记 8 分。
3结语
一栋建筑的建造,不应仅满足自我功能的需求,也需实现与周边资源的互动, 更应体现出对整个环境的尊重。海纳百川,有容则大。在历史的背景下,用开发整合共享的思维去考量医院建筑的功能形式及城市关系,才是创建真正可持续发展绿色医院的可行之道。
作者简介:汪铮,现供职于同济大学设计研究院( 集团) 有限公司。主要研究方向为绿色建筑设计和建筑节能。
